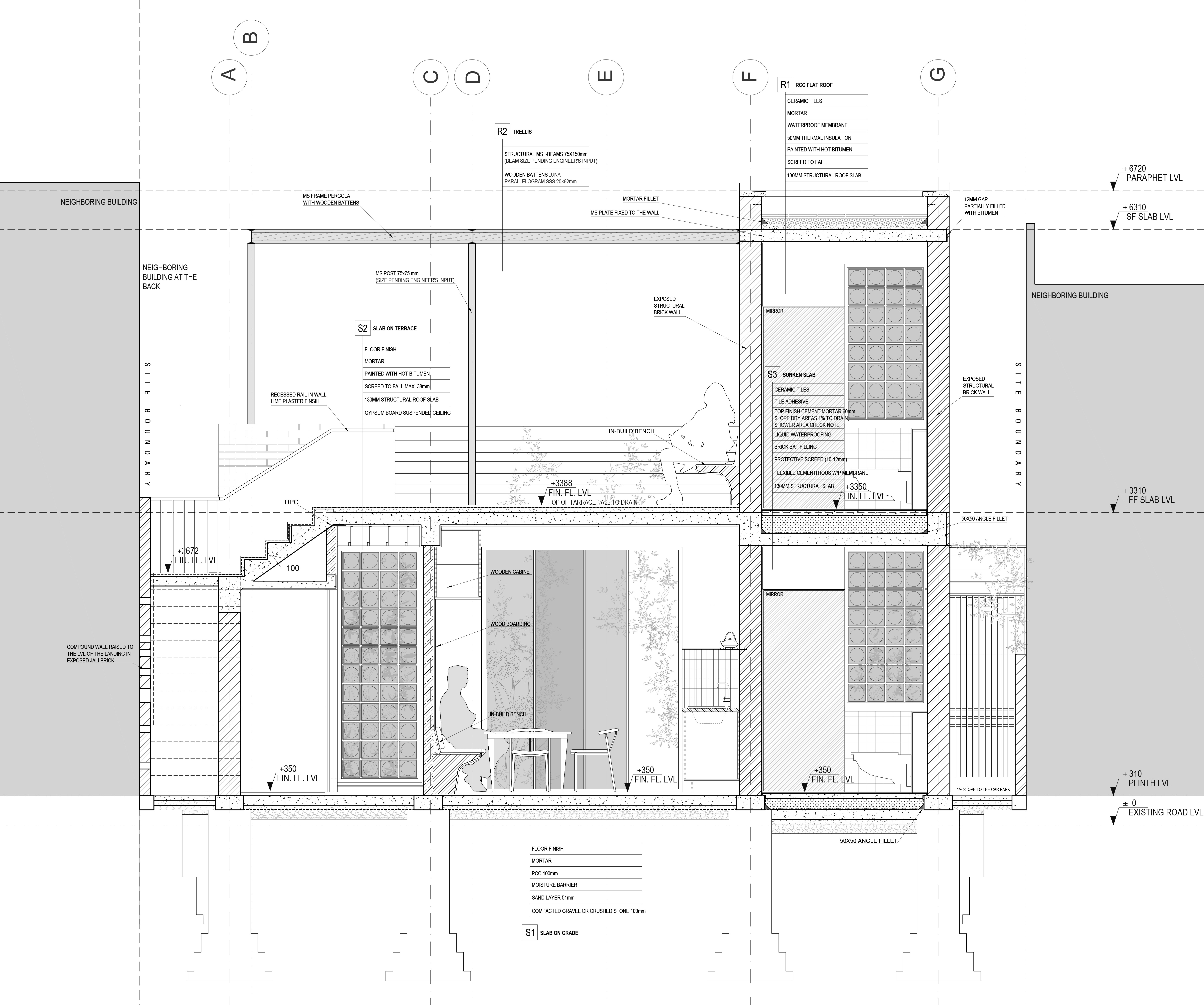
Earth Block Duplex
- small family home 
as sole practitioner
Bangalore, Inida
stage: under construction 2025
type: architecture, interior and lanscape design
area: 120sqm
concept development:
 










all drawings by Kaja Deleżuch
copyright © 2010-2025 Kaja Deleżuch
all rights reserved